Contact Us

595 Compass DriveJasper, TN 37347Price: $120,000

  • Price: $120,000
  • Est. Mortgage of $/month
  • 112 Days on Market
$
$
%
$/month over payments
Federal 30-year interest rate: 6.11% last updated on Mar 12, 2026
* All Figures are estimates. Check with your bank or proposed mortgage company for actual interest rates.
This product uses the FRED® API but is not endorsed or certified by the Federal Reserve Bank of St. Louis.
  • $120,000List Price
  • 1.15Acreage

Listing Tools

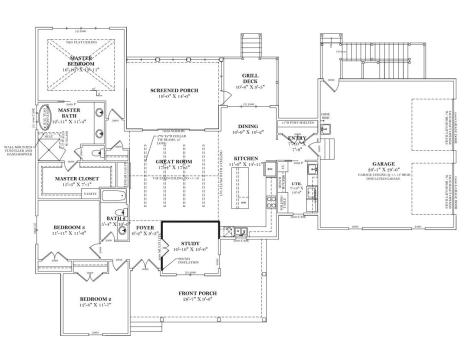
Welcome to Jasper Highlands, Tennessee's premiere mountain top gated community. Nestled on the highly sought-after River Bluff side of Jasper Highlands, this stunning 1.15-acre lot offers the perfect blend of privacy, convenience, and natural beauty. Located at the end of a quiet cul-de-sac, just off the main roads you'll enjoy added security and seclusion in one of the community's most desirable areas. This PRIVATE, mostly level homesite backs up to a privately owned conservation area--ensuring your backyard views stay peaceful and uninterrupted. The sale includes a pre-approved and Perked for a three-bedroom house plan, offering a jump-start on your custom build at an unbeatable price.Site prep is already underway--septic area has been staked, french drainage installed and the land is primed for construction. Enjoy Peek-A-Boo views of the surrounding valleys, creating a serene and picturesque setting for your future home. Jasper Highlands is known for it's rich amenities including: gated security, 2-community pools, a dog park and fishing pond, miles of trails with waterfalls and creeks, pickle ball and tennis courts, bocce ball, horse shoe pits, putting green and kids park. 2- fire department stations and a heli-pad, Surrounded by beautiful homes with great views. Great neighborhood for walks, bike rides etc. There are community activies all summer, including monthly pot-lucks, and an annual BarBQ cookoff, a chili contest, the Fourth of July Parade and so much more, let us tell you all about them. And the best part? Your just a 11 minutes drive to Top Of The Rock Restaurant & Brewery, Firey Gizzard Pizza, Fitness Center and Pat's Summit located near the front gate. Not to mention half hour into Chattanooga from the bottom of the hill, and 2 hours into Nashville or Atlanta. Don't miss this incredible opportunity to build your dream home in one of Tennessee's most prestigious mountaintop communities. Call today for a private tour.

Property Details of 595 Compass Drive

Map Location

Driving Directions

 Listings courtesy of Realtracs as distributed by MLS GRID. Based on information submitted to the MLS GRID as of March 12, 2026 11:57 PM EDT. All data is obtained from various sources and may not have been verified by broker or MLS GRID. Supplied Open House Information is subject to change without notice. All information should be independently reviewed and verified for accuracy. Properties may or may not be listed by the office/agent presenting the information. IDX information is provided exclusively for consumers’ personal noncommercial use and may not be used for any purpose other than to identify prospective properties consumers may be interested in purchasing. The data is deemed reliable but is not guaranteed by MLS GRID. The use of the MLS GRID Data may be subject to an end user license agreement.

Hi there! How can we help you?

Contact us using the form below or give us a call.

Send Us A Message:

I agree to receive marketing and customer service calls and text messages from Gooch-Beasley, Realtors. To opt out, you can reply 'stop' at any time or click the unsubscribe link in the emails. Consent is not a condition of purchase. Msg/data rates may apply. Msg frequency varies. Privacy Policy.

Do not fill in this field:

This site is protected by reCAPTCHA and the Google Privacy Policy and Terms of Service apply.

Hi there! How can we help you?

Contact us using the form below or give us a call.

Send Us A Message:

Do not fill in this field:

This site is protected by reCAPTCHA and the Google Privacy Policy and Terms of Service apply.

Hi there! How can we help you?

Contact us using the form below or give us a call.

Send Us A Message:

Do not fill in this field:

This site is protected by reCAPTCHA and the Google Privacy Policy and Terms of Service apply.

Do not fill in this field:

This site is protected by reCAPTCHA and the Google Privacy Policy and Terms of Service apply.

Do not fill in this field:

This site is protected by reCAPTCHA and the Google Privacy Policy and Terms of Service apply.

Do not fill in this field:

This site is protected by reCAPTCHA and the Google Privacy Policy and Terms of Service apply.

$

Do not fill in this field:

This site is protected by reCAPTCHA and the Google Privacy Policy and Terms of Service apply.
Listed by Jessica Wright of RE/MAX Realty South (8168121443)